
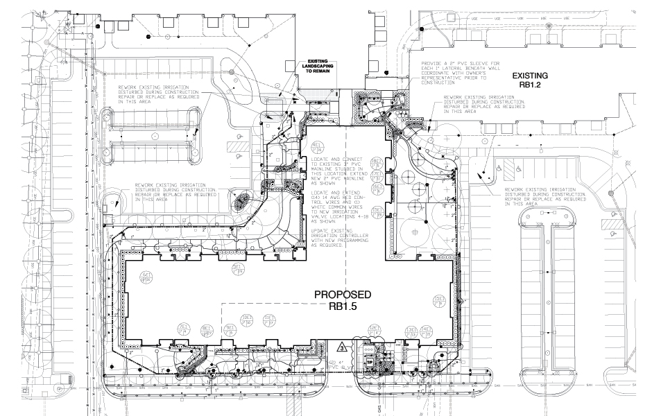
Tallgrass Creek – Phase 5
Overland Park, KS
Set on 65 acres in the beautiful community of Overland Park, Tallgrass Creek is the most sought after retirement address in the Kansas City area. This is the next phase of the Tallgrass Creek Retirement Community




